FOR SALE BY EXPRESSIONS OF INTEREST closing Wednesday 10th December at 4.00pm
* Offered with vacant possession
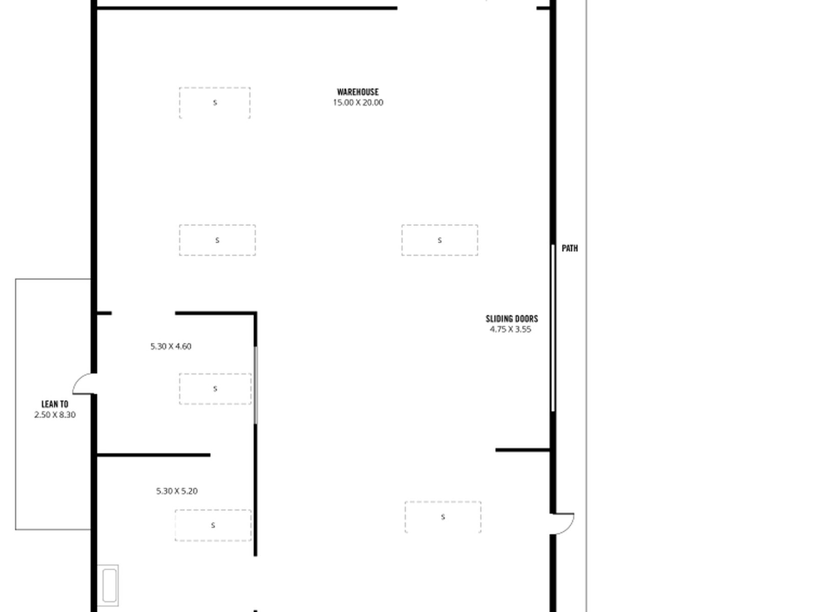
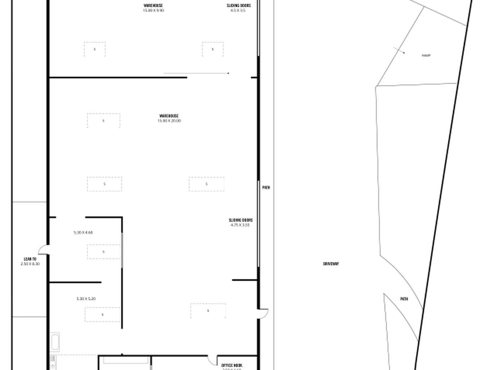
* 3 phase power
* 2 sliding door access to workshop
* Scope to upgrade / improve
For more information or to arrange an inspection please contact Nic Jordan on 0416 217 219
RLA 510


























