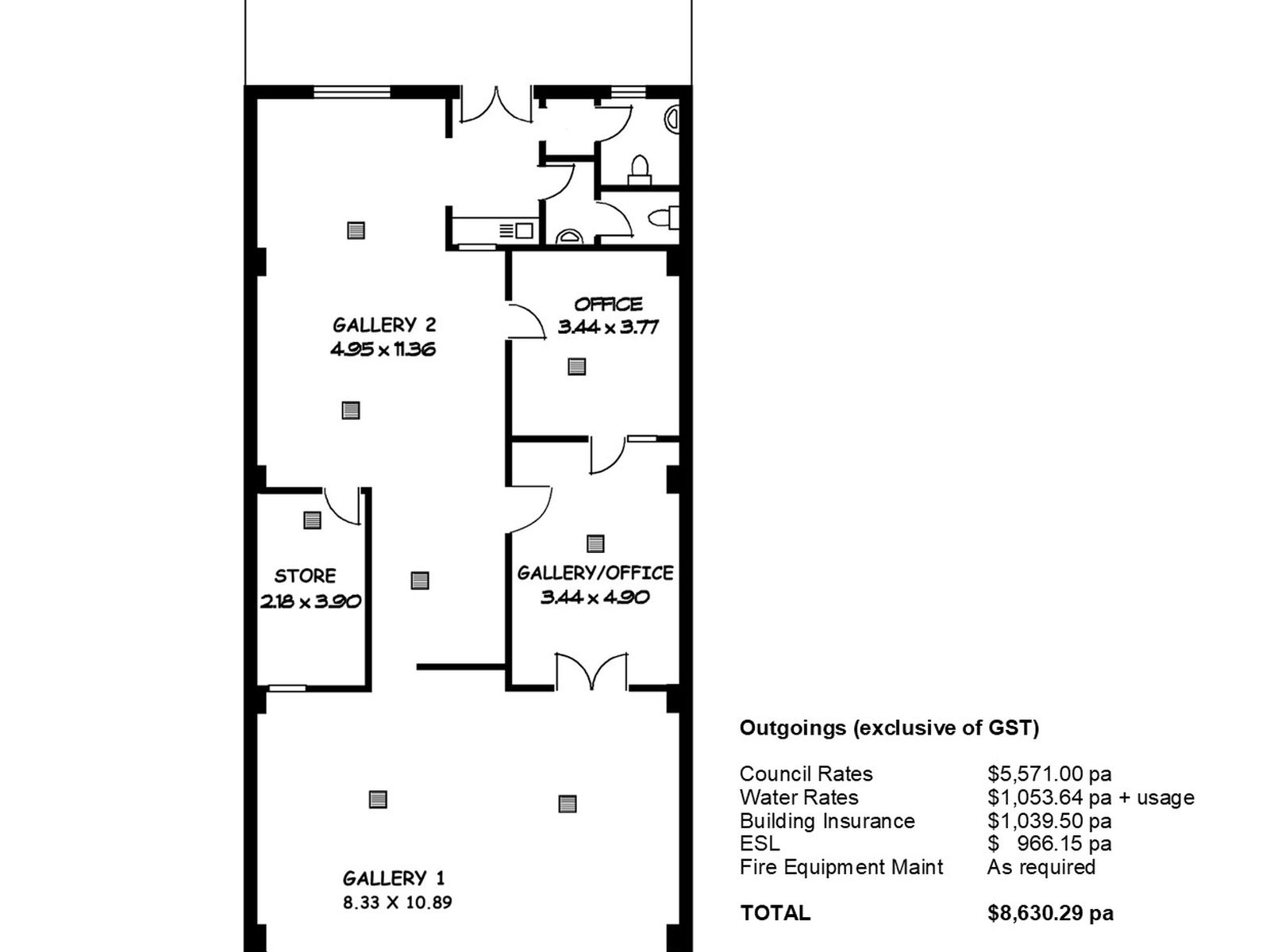
* Partitioned and air conditioned throughout
* Rear access with 3 off street car parks
For more information or to arrange an inspection please contact Nic Jordan on: 0416 217 219
RLA 510











* Partitioned and air conditioned throughout
* Rear access with 3 off street car parks
For more information or to arrange an inspection please contact Nic Jordan on: 0416 217 219
RLA 510